Janeiro 183

Rio de Janeiro, RJ, Brasil

2021-2024

 

837m²

Co-autoria: DC arquitetura

fotografia: Tiago Tardin

O bairro do Humaitá se destaca por sua localização privilegiada na cidade. Próximo ao Túnel Rebouças — importante via que conecta as zonas norte e sul —, o bairro também oferece fácil acesso a parques e áreas de lazer, como a Lagoa e o Jardim Botânico. Além disso, conta com uma excelente variedade de serviços e opções de entretenimento. Situado aos pés do Corcovado, o Humaitá preserva a natureza ao redor, a Mata Atlântica invade suas ruas, tornando-as charmosas e bucólicas.

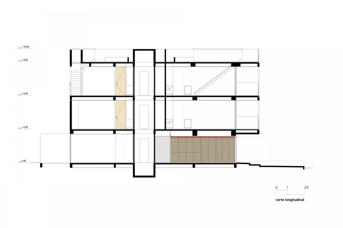
 Em uma dessas agradáveis ruas, a Viúva Lacerda, projetamos o Janeiro 183, um edifício residencial de três pavimentos que oferece apartamentos com espaços integrados, funcionais e confortáveis. Composto por sete unidades exclusivas, o empreendimento inclui estúdios, apartamentos garden, apartamentos de dois quartos e rooftop gardens — estes com vistas privilegiadas para o Corcovado, sob os braços do Cristo Redentor.

 O Janeiro 183 é um edifício residencial de desenho simples e arquitetura singela, com espaços que valorizam o bem-estar das pessoas e a integração com a paisagem.

 Sua arquitetura reflete o respeito ao entorno e à ambiência urbana bucólica preservada da rua. A escala do edifício e os materiais de revestimento integram-se harmoniosamente aos bens tombados vizinhos. A fachada destaca uma tradição da arquitetura portuguesa, a utilização de painéis de azulejos, aqui reinterpretados em padrões contemporâneos. Varandas de vidro na fachada frontal conectam os interiores à vegetação da rua, proporcionando luminosidade natural e conforto aos ambientes internos. Na fachada dos fundos, escadas que levam aos rooftop gardens dos estúdios recebem fechamento em cobogó, que protegem os interiores da incidência do sol da tarde e criam um agradável efeito de luz e sombra.

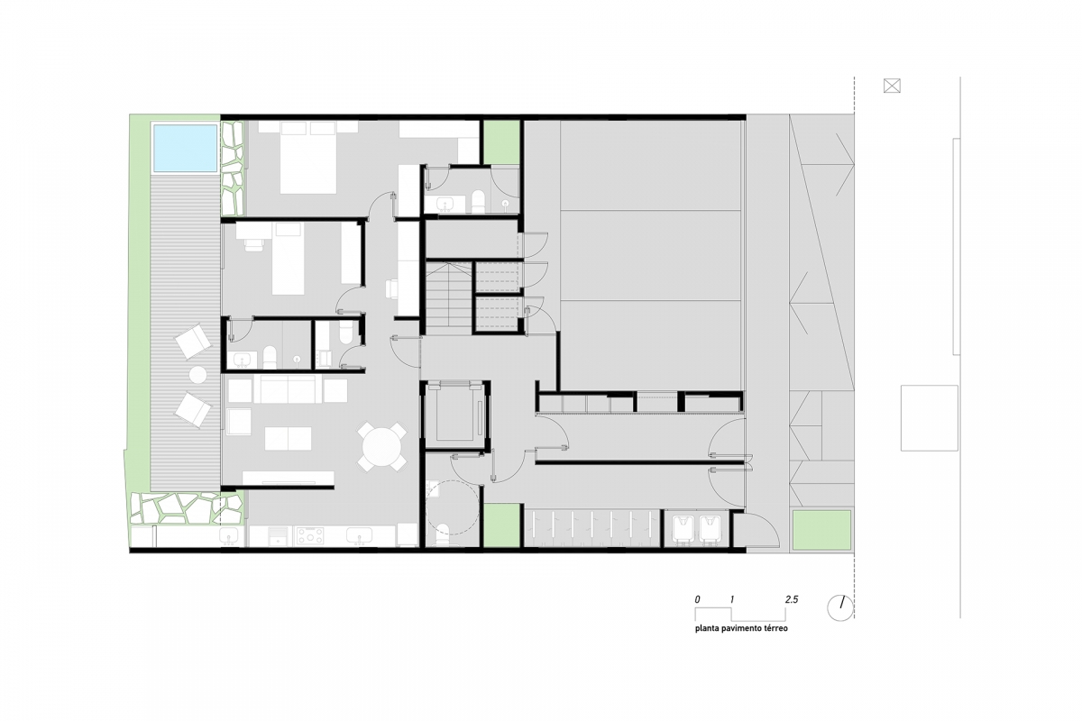
 O pavimento térreo é funcional e seguro, com três acessos controlados remotamente: o acesso principal, o acesso de serviços e o acesso à garagem. O acesso principal é planejado para privacidade, com uma área exclusiva para boxes e medidores, assegurando que somente moradores e convidados tenham acesso aos halls comuns. O acesso de serviços inclui um bicicletário com sete vagas, depósito de lixo e banheiro de serviço. A garagem oferece três vagas para maior comodidade, além de áreas técnicas.

 Nas áreas comuns do edifício, a escolha de materiais simples e despojados — como o concreto no piso da escada, o ferro no guarda-corpo e a madeira nas portas — proporciona leveza às áreas de circulação. Uma claraboia posicionada sobre a escada permite a entrada de luz natural, “acendendo” o ambiente.

 As plantas dos apartamentos são pensadas para acomodar diferentes perfis de famílias e estilos de vida. Os layouts com ambientes integrados valorizam a amplitude dos espaços, provendo praticidade ao dia a dia dos moradores.


 

[+]